Lipowa Budynek 1 - plan

Znajdź swoje mieszkanie

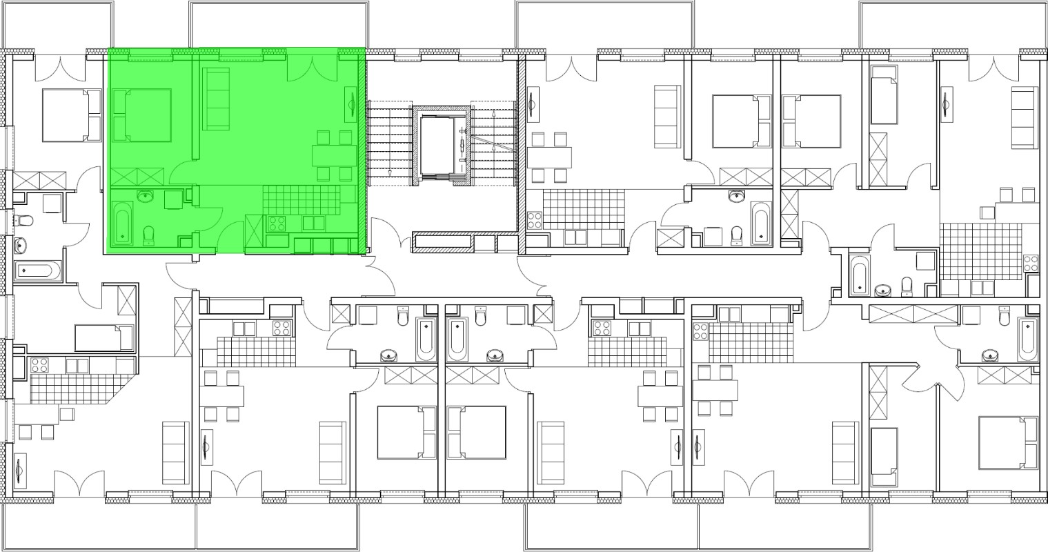
Zielona Lipowa

Mieszkanie nr 21

Cena: 412 250 zł
Cena za m²: 8 500 zł
Dostępne
Atrybuty

Winda

Balkon

Pokój dzienny 22,44 m2
Aneks kuchenny 5,03 m2
Przedpokój 4,43 m2
Łazienka 5,05 m2
Sypialnia 11,55 m2
Powierzchnia całkowita 48,50 m2
Więcej mieszkań

ZIELONA LIPOWA

Twoja przestrzeń spokoju i aktywnego wypoczynku

Zielona Lipowa


Zielona Lipowa to nowoczesna inwestycja mieszkaniowa stworzona z myślą o maksymalnym komforcie i wygodzie przyszłych mieszkańców. To miejsce, gdzie współczesna architektura spotyka się z funkcjonalnością, tworząc idealne warunki do codziennego życia


Lokalizacja i otoczenie

Zielona Lipowa powstaje w Hajnówce przy ul. Lipowej, w cichej, malowniczej okolicy otoczonej bujną zielenią. To idealne miejsce dla osób, które pragną odpocząć od miejskiego zgiełku i żyć w bliskim kontakcie z naturą. Lokalizacja inwestycji gwarantuje nie tylko spokój i kameralny klimat, lecz także doskonałe warunki do aktywnego wypoczynku — spacerów, joggingu czy wycieczek rowerowych po urokliwej okolicy.


Aktualna realizacja

W pierwszym etapie inwestycji oferujemy 31 komfortowych mieszkań o zróżnicowanych metrażach. Każde z nich zostało starannie zaprojektowane tak, aby jak najlepiej wykorzystać dostępną przestrzeń i zapewnić maksymalną wygodę codziennego użytkowania.


Przyszłe etapy

Zielona Lipowa to inwestycja realizowana w dwóch etapach. W kolejnym etapie powstanie następnych 31 mieszkań w najbardziej cenionych i funkcjonalnych układach. Dzięki temu każdy znajdzie tu przestrzeń idealnie dopasowaną do swoich potrzeb i stylu życia.

Udogodnienia

Parking

Parking: Komfort parkowania na wyciągnięcie ręki — do dyspozycji mieszkańców przygotowano nowoczesne garaże oraz wygodne miejsca postojowe na parkingu naziemnym. Wszystko po to, by codzienność była jeszcze prostsza.

Strefa zabaw

Strefa zabaw: Z myślą o najmłodszych mieszkańcach tworzymy wyjątkową strefę zabaw, ulokowaną w bezpiecznie wydzielonej części osiedla. To kolorowe, przyjazne miejsce, w którym dzieci będą mogły aktywnie spędzać czas na świeżym powietrzu, rozwijać wyobraźnię i bawić się w pełni bezpiecznych warunkach.

Nowoczesna infrastruktura

Nowoczesna infrastruktura: Zielona Lipowa została zaprojektowana z wyjątkową dbałością o detale, a nowoczesna architektura i starannie przemyślana infrastruktura podkreślają jej unikalny, elegancki charakter.

Zielona Lipowa to idealny wybór dla osób, które cenią spokój, bliskość natury i aktywny styl życia. Nowoczesna inwestycja oferuje komfortowe warunki mieszkalne, szeroki wybór udogodnień oraz piękne, harmonijne otoczenie. Zapraszamy do kontaktu i poznania pełnej oferty — tu czeka na Ciebie miejsce, w którym naprawdę chce się żyć.


Projekt zagospodarowania terenu przy ul. Lipowej w Hajnówce to nowoczesna i doskonale przemyślana przestrzeń, stworzona z myślą o komforcie, wygodzie i estetyce. Centralnie położony budynek, o funkcjonalnym i eleganckim układzie, harmonijnie wpisuje się w otoczenie, tworząc atrakcyjne miejsce do życia, pracy i wypoczynku.


Starannie zaprojektowane strefy zieleni, ścieżki piesze oraz przestrzenie rekreacyjne sprzyjają relaksowi i codziennej aktywności. Od strony ul. Lipowej przewidziano wygodny wjazd oraz obszerny parking, zapewniający swobodny dostęp dla mieszkańców i gości. Uzupełnieniem są nowoczesne drogi wewnętrzne, oświetlenie oraz elementy małej architektury, które podkreślają prestiżowy charakter inwestycji.


To miejsce, w którym funkcjonalność spotyka się z estetyką – idealne dla osób poszukujących komfortowej, dobrze zaplanowanej przestrzeni w sercu Hajnówki.


BLISKO NATURY

Poznaj wyjątkową okolicę

Sprawdź dokładną lokalizację Zielonej Lipowej i zobacz, jak blisko natury oraz codziennych udogodnień możesz zamieszkać. To idealne połączenie spokojnego otoczenia z komfortem miejskiej wygody.

TWÓJ PRZYSZŁY DOM

Widoki na osiedle

Odkryj wizualizacje Osiedla Enklawa i zobacz, jak będzie wyglądać miejsce, w którym w przyszłości zamieszkasz. Pozwól sobie wyobrazić codzienność w nowoczesnym, komfortowym otoczeniu stworzonym z myślą o Twojej wygodzie.

ZAPYTAJ NAS O SZCZEGÓŁY

Zapraszamy do kontaktu

Zapraszamy do kontaktu z doradcą, który chętnie udzieli wszelkich informacji na temat Zielonej Lipowej, przedstawi dostępne mieszkania i pomoże w wyborze idealnego lokum dla Ciebie.

kontakt
Michał Buszko

Doradca ds. mieszkań

Kontakt

tel. 792 793 903
michal.buszko@romarbudownictwo.pl

Biuro sprzedaży

ul. 3 maja 47 (Galeria Leśna), 17-200 Hajnówka